
Clubhaus-Sanierung – was ist genau geplant?
Ein Blick in die Zukunft unseres Vereinshauses
Worum geht’s?
Viele von Euch verfolgen die geplante Sanierung unseres Vereinshauses bereits mit großem Interesse – und das freut uns sehr!
Damit alle Mitglieder und Freund:innen des MRC genau wissen, was entsteht, möchten wir hier volle Transparenzschaffen und die aktuellen Pläne unseres Architekten Sunder-Plassmann vorstellen.
Aktueller Stand der Pläne: Oktober 2025

Gemeinsam gestalten wir die Zukunft des Clubs – Schritt für Schritt, mit Blick auf Tradition, Gemeinschaft und den Rudersport, der uns verbindet.
Gemeinsam mit dem Architekturbüro Sunder-Plassmann entsteht ein Konzept, das Bewährtes bewahrt und Neues möglich macht. Auf dieser Seite stellen wir den geplanten Zustand, ergänzt um Außenansichten und Grundrisse dar.

Die Highlights im Überblick
Ein Hauch Geschichte – und viel Zukunft
Eine historische Postkarte aus dem Jahr 1900 zeigt, wie sich das Haus damals präsentierte – und gibt einen schönen Vorgeschmack darauf, wie es künftig wieder aussehen soll.

Bootshalle 1 – ganz dem Rudern gewidmet
Nach der Sanierung steht die Halle wieder vollständig für Boote und Zubehör zur Verfügung. Damit rückt der Sport wieder ins Zentrum des Hauses.
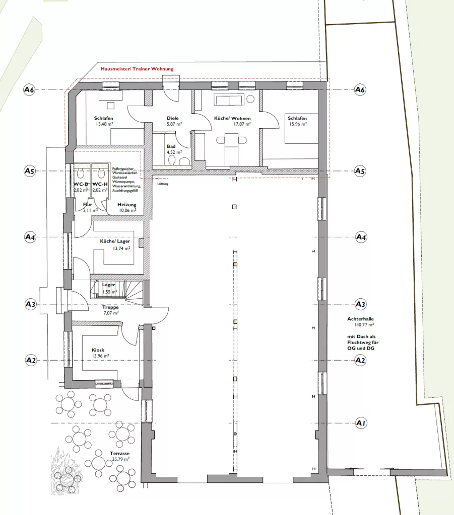
Erdgeschoss –
Treffpunkt für Geselligkeit
Hier entsteht eine moderne Küche sowie ein kleiner Kiosk zur Bewirtung der Terrasse – ideal für gesellige Stunden nach dem Training oder an sonnigen Wochenenden.

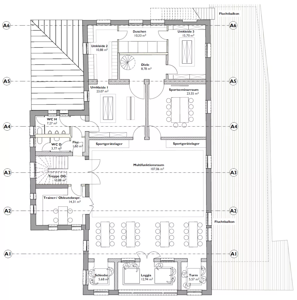
Erstes Obergeschoss –
Raum für Begegnung
Geplant sind attraktive Aufenthaltsbereiche, ein großer Saal (z. B. auch für Yoga oder Gymnastik nutzbar) sowie drei neue Umkleideräume für die Herren.

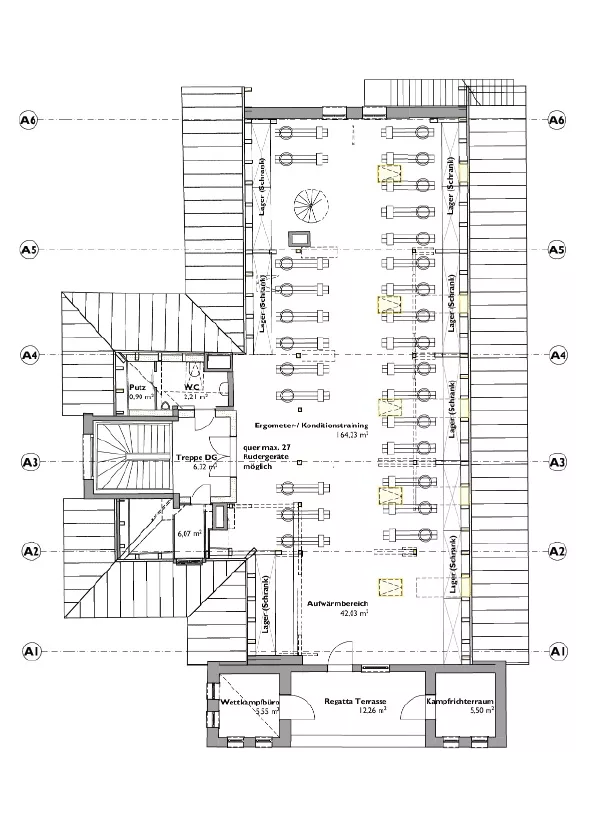
Dachgeschoss –
das sportliche Highlight
Ein ganz besonderer Gewinn: ein großer Sportraum mit viel Licht, Weitblick und Platz für modernes Training.

Moderne Heiztechnik
mit Zukunft
Kombination aus Gasheizung und Wärmepumpe – effizient, nachhaltig und förderfähig. Laut Energieplanung sparen wir damit deutlich an laufenden Kosten und machen einen wichtigen Schritt in Richtung klimafreundlicher Zukunft.

Ein Gewinn für Sport und Gemeinschaft
Mit der Sanierung schaffen wir mehr Raum für das, was unseren Club ausmacht: Leidenschaft für den Rudersport, Gemeinschaft über Generationen hinweg und ein Zuhause am See, das Tradition und Moderne vereint.
Jeder Schritt bringt uns unserem Ziel näher – einem Vereinshaus, das den MRC für die nächsten Jahrzehnte stärkt.
Fragen oder Anmerkungen?
Sprich mich gern an – ich freue mich über jede Rückmeldung:

Stefanie Monecke
stv. Vorsitzende, Projektkoordination
Mobil: 017634238535
Email: stefanie.monecke@mrc1880.de
Mit Deiner Unterstützung rudern wir gemeinsam Richtung Ziel – danke!

Steuer mit uns in die Zukunft – jede Spende hilft.

